Ga naar de inhoud
Uitstekend beoordeeld door onze klanten.
Al jaren een grote speler in Twente!
Zakelijk waar nodig, persoonlijk waar kan!
Nieuw
7553 GC, Hengelo

Leurinkstraat 6

Vraagprijs: € 359.000 k.k.

Omschrijving

Een uitstekend onderhouden twee-onder-een-kapwoning, gelegen op een ruim perceel van 308 m², zeer praktisch gelegen ten opzichte van alle dagelijkse voorzieningen. Maak kennis met de Leurinkstraat 6 in Hengelo!

De woning is helemaal bij de tijd. Zo zijn in 2025 de buitenkozijnen nog geschilderd, is het dak aan de binnenzijde geïsoleerd en beschikt de woning over onder andere strak stucwerk op zowel de begane grond als de verdieping: dit geeft de woning een zeer verzorgde en instapklare indruk.

Dit huis is ideaal voor starters en doorstromers. Een greep uit de mooie en bijzondere kenmerken van deze woning bestaat uit onder andere de royale oprit met carport, de overkapping aan de achterzijde van de woning, de diepe achtertuin met grote stenen schuur en de nette bovenverdieping met airconditioning, 3 (slaap)kamers en een moderne badkamer.

Vanuit de Leurinkstraat ben je in een mum van tijd op diverse plekken in de stad. Via de aangrenzende Breemarsweg zijn bijvoorbeeld de snelweg, winkelcentrum Esrein, het stadscentrum en het station binnen enkele minuten te bereiken.

Ben jij op zoek naar een goed onderhouden woning op een ruim perceel met eigen oprit inclusief carport? Dan is dit precies wat je zoekt!

Tip: Elst&co Makelaars zet altijd een stap extra en presenteert iedere woning met een unieke eigen woningwebsite! Download de brochure op Funda en vind je weg naar de website waar je onder andere virtueel kunt bezichtigen, alle relevante documentatie vindt en bijvoorbeeld meer te weten komt over de voorzieningen in de buurt. Tevens kun je de zonnestand bekijken die voor verschillende data en tijdstippen de zon in huis en tuin laat zien en of de situering van de woning geschikt is voor zonnepanelen.

Indeling van de woning:
Begane grond:
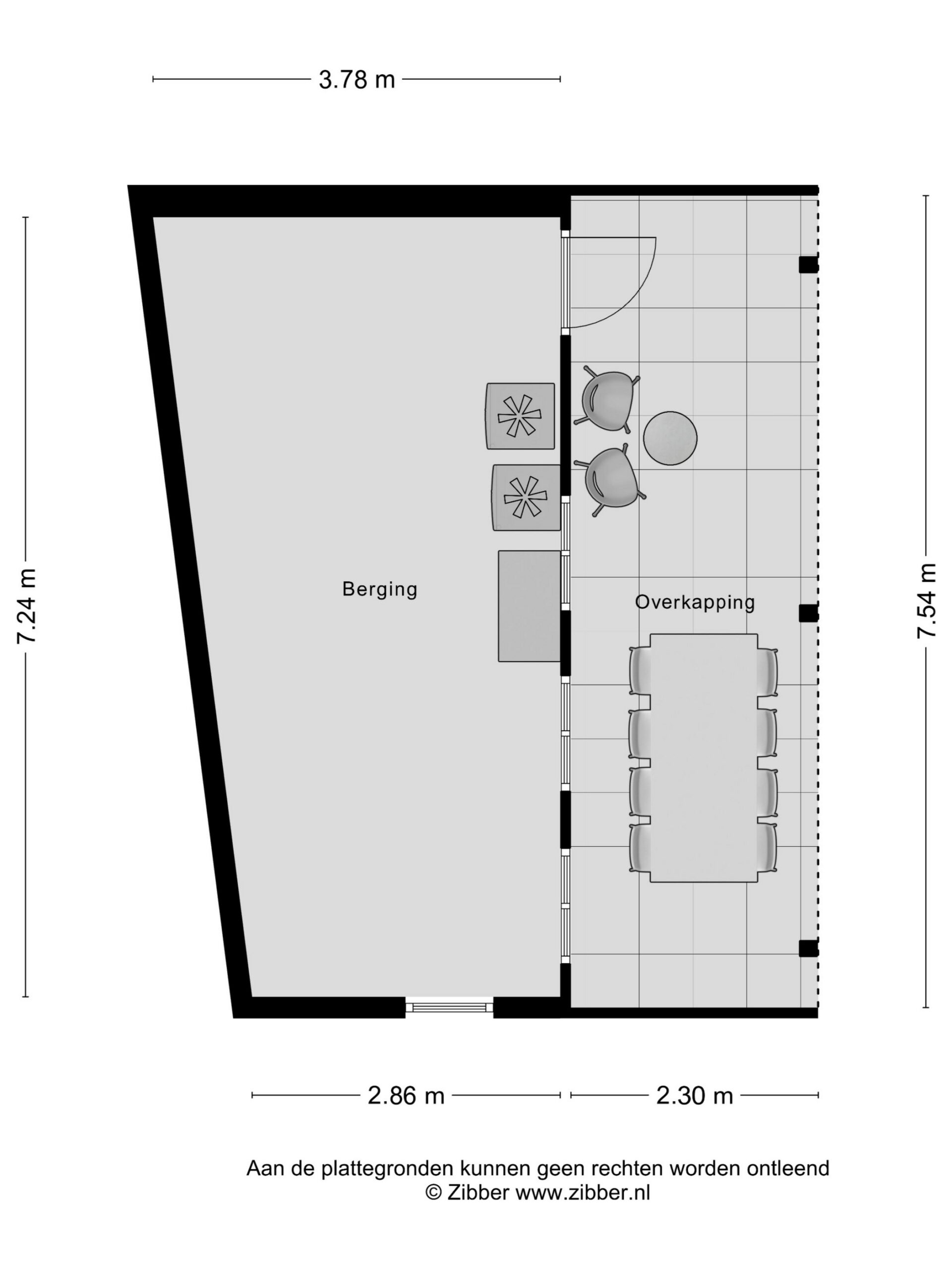
Entree, hal met meterkast, toilet en trapopgang. Deur naar de woonkamer met openslaande tuindeuren naar de overkapping. De dichte keuken aan de achterzijde kent een nette keukenopstelling, voorzien van diverse apparatuur, en verschaft toegang tot de zeer praktische kelder voor bijvoorbeeld voorraad. De achterdeur leidt naar het overdekte terras en de externe berging, waar het witgoed staat en waar je meer ruimte hebt voor voorraad en/of opslag. De achtertuin, vanaf de oprit met achterom te bereiken, is heerlijk ruim, fraai aangelegd en achterin voorzien van een grote schuur over de gehele breedte van de tuin; ideaal voor de hobbyist, voor tuingereedschappen, fietsen en meer. Met een ligging op het westen heb je hier op ieder moment van de dag een plek in de zon en de schaduw; heerlijk!

Eerste verdieping:
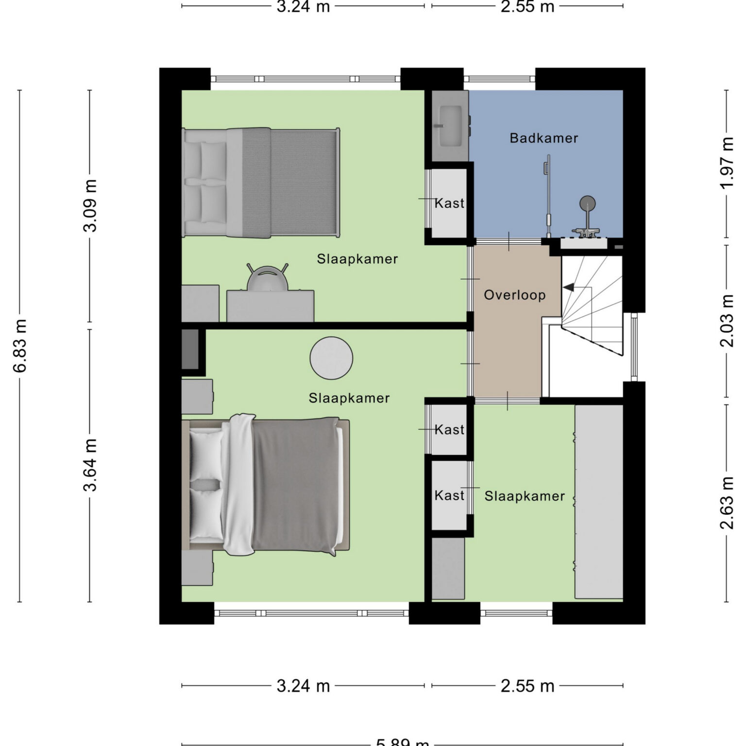
Overloop met airconditioning, 3 slaapkamers waarvan 2 ruim en 1 iets kleiner, allen keurig afgewerkt. De badkamer is modern uitgevoerd en voorzien van ruime inloopdouche en wastafel.

Tweede verdieping:
Via een vlizotrap kom je op de ruime bergzolder met dakraam, CV-installatie en mechanische ventilatie. Meer dan voldoende ruimte voor het opbergen van allerlei spullen. Er zijn gelijksoortige woningen waarbij de tweede verdieping toegankelijk is gemaakt met een vaste trap, e.e.a. behoort tot de mogelijkheden.

Bijzonderheden:
– Woningtype: twee-onder-een-kapwoning;
– Bouwjaar: 1949;
– Woonoppervlakte: 80 m2;
– Perceeloppervlakte: 308 m2;
– Energielabel E;
– Begane grond met fijne woonkamer en dichte keuken;
– 3 slaapkamers en een moderne badkamer op de verdieping, tevens voorzien van airconditioning;
– Royale oprit voor zeker 2 auto’s, voorzien van grote carport en achterom;
– Grote en uitstekend verzorgde achtertuin met vrijstaande schuur achterin;
– Recent uitgevoerd schilderwerk aan de buitenzijde;
– Screens geplaatst aan de voorzijde van de woning;
– Strak stucwerk op begane grond en verdieping;
– Een fijne uitvalsbasis richting bijvoorbeeld stad, winkelcentrum en snelweg.

In aanvulling op bovenstaande bijzonderheden, zijn de volgende bepalingen van toepassing:
– Partijen zijn pas gebonden wanneer een koopovereenkomst is ondertekend door beide partijen (schriftelijkheidsvereiste).
– Het stellen van een bankgarantie/waarborgsom ter grootte van 10% van de koopsom.
– Voor woningen ouder dan 30 jaar is de ouderdomsclausule van toepassing.
– Voor woningen gebouwd vóór 1993 is de mogelijke asbestclausule van toepassing.

Aanvaarding:
In overleg.

Deze presentatie is informatief en geheel vrijblijvend. Aan eventuele onjuistheden kunnen geen rechten worden ontleend.

Interesse in dit huis? Schakel direct jouw eigen NVM-aankoopmakelaar in. Jouw NVM-aankoopmakelaar komt op voor jouw belang en bespaart je tijd, geld en zorgen. Adressen van collega NVM-aankoopmakelaars vind je op Funda.

Lees verder Lees minder

Kenmerken

Overdracht

Koopprijs
359.000
Status
Beschikbaar
Aanvaarding
In overleg

Bouw

Huidig gebruik
Woonruimte
Energieklasse
E
Bouwjaar
1949
Alle kenmerken

Kenmerken

Algemeen

Koopprijs
359.000
Status
Beschikbaar
Aanvaarding
In overleg

Energie

Energieklasse
E
Verwarming
CV ketel
Warm water
CV ketel
Isolatie
Dakisolatie, Dubbelglas

Bouw

Soort
Eengezinswoning
Type
Twee onder één kapwoning
Recreatiewoning
Nee
Permanente bewoning
Ja
Bouwjaar
1949
Voorzieningen
Mechanische ventilatie, TV kabel, Buitenzonwering, Airconditioning, Dakraam, Glasvezel kabel, Natuurlijke ventilatie

Tuin

Tuintypen
Achtertuin, Voortuin
Kwaliteit
Verzorgd
Achterom
Ja
Hoofdtuin
Achtertuin
Positie
West
Lengte
18 m
Breedte
7.5 m
Oppervlakte
135 m2

Oppervlakte en inhoud

Woonoppervlakte
80 m2
Perceel oppervlakte
308 m2
Inhoud
352 m3
Oppervlakte externe bergruimte
31 m2
Gebruiksoppervlakte overige functies
19 m2
Buitenruimtes gebouwgebonden of vrijstaand
44 m2

Parkeren

Soorten
Carport, Parkeerplaats, Geen garage
Parkeer faciliteiten
Openbaar parkeren, Op eigen terrein, Op afgesloten terrein
Parkeren capaciteit
2

Onderhoud

Binnen
Goed
Buiten
Goed

Locatie

Adres
Leurinkstraat 6
Plaats
Hengelo
Provincie
OVERIJSSEL
Land
Nederland
Ligging
Aan rustige weg, In woonwijk

Berging

Soort
Vrijstaand steen
Voorzieningen
Voorzien van elektra, Voorzien van water
Totaal aantal
2

Overig

Huidig gebruik
Woonruimte
Huidige bestemming
Woonruimte

Foto’s

Video’s

Plattegronden

Documenten

Hengelo – Leurinkstraat 6 – Document

In de buurt

Burgelijke staat

Leeftijden

Huishoudens

Aantal huishoudens:
5060
Gem. grootte:
1.9
Mannelijke inwoners wijk
4925
Vrouwelijke inwoners wijk
4905
Mannelijke inwoners Hengelo
40776
Vrouwelijke inwoners Hengelo
40273
Wil je dit huis delen?
Benieuwd naar de waarde van jouw huis?
Vraag het ons!
Contactgegevens
Copyright 2026 Elst&co Makelaars Gerealiseerd door: BIG FAT Internet